У Луцьку досі не стартувала реконструкція приміщення на вулиці Сергія Климчука, 7, де мали створити ветеранський хаб. Замість ремонту старої будівлі міська влада розглядає можливість будівництва нового об’єкта за державний кошт.
Про це в коментарі misto.media розповів керівник КП «Хаб Ветеран» Тарас Сасовський.
Міністерство у справах ветеранів анонсувало конкурс серед міських громад на будівництво нових хабів, яке фінансуватиме держава. Заявки приймають до кінця травня, і Луцька громада теж її подала.
Громади, які виграють, отримають фінансування від Міністерства у справах ветеранів на будівництво нового хабу. Буде близько 10 переможців на Україну, — зазначає Сасовський.
Поки чекають результати, роботи в приміщенні на вул. Сергія Климчука, 7, яке планували реконструювати для хабу, поки не виконують.
«Самі розумієте, нам зараз немає сенсу починати якісь роботи, не знаючи результатів конкурсу. Якщо ми виграємо, то буде можливість це все зробити за державний кошт. Якщо не виграємо — фінансуватимемо з міського бюджету. Фактично зараз приміщення на Климчука — запасний варіант», — каже він.
Звести нове приміщення, можливо, буде дешевше, ніж ремонтувати старе і підлаштовувати його до вимог інклюзивності, зазначив під час панельної дискусії «Інклюзивність: мрія чи реальність?», яка відбулася після «Ходи безбар’єрності» 5 травня, директор департаменту з питань ветеранської політики Олег Кобилинський.


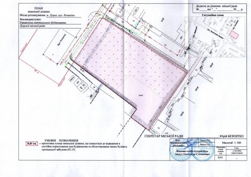
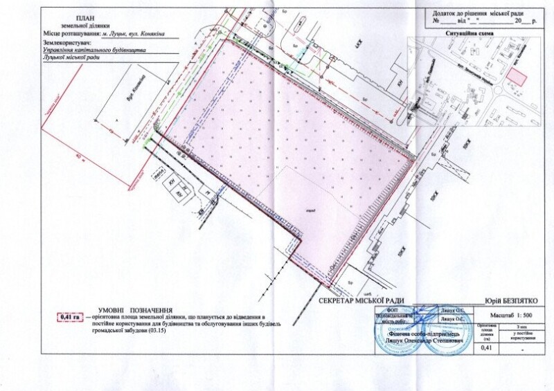
30 квітня міськрада ухвалила рішення про надання управлінню капітального будівництва дозволу на розроблення проєкту землеустрою щодо відведення земельної ділянки площею 0,41 га на вул. Конякіна у м. Луцьку для будівництва та обслуговування інших будівель громадської забудови.
«Наразі готується земельна ділянка під можливий майбутній об’єкт. Поки що це тільки плани», — зазначив у коментарі misto.media начальник управління капітального будівництва Василь Ліщук.

Нагадаємо, проєкт майбутнього закладу, який планували створити на вул. Сергія Климчука, 7, презентували у жовтні минулого року. Розробка проєктно-кошторисної документації обійшлася міському бюджету в 1,350 млн грн.
Приміщення раніше здавали в оренду громадським організаціям, згодом частину орендарів відселили, щоб його відремонтувати. Тендер на пошук підрядника мали оголосити після розроблення ПКД, але ще цього не зробили.
Якщо Луцьк потрапить до списку переможців конкурсу від Мінветеранів, приміщення на вул. Сергія Климчука, можливо, здаватимуть в оренду.
«Це питання, мабуть, більше вирішуватиме відділ комунального майна», — каже Тарас Сасовський.
Ветеранський хаб — установа, де ветерани, члени їхніх сімей, родини зниклих безвісти, загиблих, особи, які постраждали від війни, отримуватимуть консультації і допомогу (юридичну, соціальну тощо).
Зараз для розв’язання питань ветерани та члени їхніх родин можуть звертатися у департамент з питань ветеранської політики на вул. Сергія Тимошенка, 2, або в КУ «Хаб ветеран» на просп. Волі, 23. Також буде кабінет на просп. Соборності, 18, де зараз триває ремонт.
Бажаєте читати першим найважливіші новини Луцька та Волині? Приєднуйтеся до нашого каналу в Telegram! Також за нашим сайтом можна стежити у Facebook, Google+ та Instagram.